国产乱国产乱,国产白嫩美女在线,日美韩一级片,啪啪电影院

當前位置:首頁 > 熱點新聞> 新技熱點

SOLIDWORKS 2024 Electrical全新升級

電氣工程師在完成電氣原理圖設計的同時,還需要頻繁的修改,導出各報表,使得大量時間浪費在重復性的手動工作上,即便如此,也無法保證百分百準確無誤;電氣設計部門和機械設計部門雖然在設計同一產品,但不同部門之間互相獨立的設計工具使協同變得困難。那么如何提高電氣工程師的設計效率?如何在協同中完成設計?

SOLIDWORKS 2024 Electrica使機械設計和電氣設計得以在同一平臺內進行

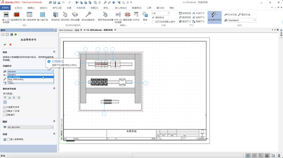
達索系統SOLIDWORKS 2024 Electrical為電氣工程師提供高效準確的電氣原理圖設計的解決方案同時,還提供多用戶協作設計,使機械設計和電氣設計得以在同一平臺內進行。電氣工程師在二維圖紙中的電氣設計,可以在機械工程師的三維空間結構中進行模擬布局,自動布線,計算線長,真正實現機電一體協同設計。SOLIDWORKS 2024 Electrical全新升級,為用戶帶來全新體驗達索系統SOLIDWORKS 2024 Electrical中,我們可以為2D機柜布局圖中的零件自動創建序號,序號塊具有各種形狀可選,多種布局陣列及過濾條件,并且零件序號還可以體現在機柜材料清單中。

繪制電氣原理

在繪制電氣原理圖時,當我們刪除部件型號,設備屬性中相關的部件屬性及端子名稱會被同時刪除; 

設置任意特殊符號

在報表屬性中,新增加了“范圍值”屬性,我們可以設置任意特殊符號,為連續3個及以上的變量進行縮寫設置,以便減小報表列寬,降低分行的概率;

SOLIDWORKS 2024 3D設備對齊、批量修改導軌及線槽長度

在達索系統SOLIDWORKS 2024 3D中,我們能夠更加快捷方便的進行設備對齊、批量修改導軌及線槽長度;  

位置布線

SOLIDWORKS 2024提升布線效率


新增“僅為活動位置布線”選項,對大項目布線,我們可先進行子裝布線,再總裝布線,從而提升布線效率。













微辰三維作為SOLIDWORKS達索正版授權代理商,將持續為您提供SOLIDWORKS 2024新功能介紹,歡迎關注微辰三維,如果有任何關于SOLIDWORKS 2024的問題,也歡迎聯系我們詳詢。











免責聲明:

本文系網絡轉載,版權歸原作者所有。如涉及版權問題,請與微辰三維聯系,我們將及時協商版權問題或刪除內容。部分圖片源于網絡侵刪。






相關資訊


CSWP/CSWA官方認證培訓-考試報名優惠活動

SolidWorks草圖如何導出成CAD圖紙

SOLIDWORKS 2024 新增功能之CircuitWorks

SOLIDWORK 2024軟件新功能之—保存為低版本

                      国产乱国产乱 宁城县| 清水县| 平凉市| 满洲里市| 大宁县| 云安县| 泽普县| 河北省| 德安县| 泸定县| 临桂县| 黄山市| 阿拉善右旗| 大洼县| 平度市| 辽中县| 曲阜市| 龙泉市| 花莲市| 临邑县| 宣威市| 洮南市| 徐闻县| 尚义县| 临清市| 偃师市| 博爱县| 宁阳县| 宜丰县| 自治县| 大名县| 申扎县| 府谷县| 屏东县| 从江县| 雷山县| 宁德市| 海宁市| 兴和县| 邹平县| 琼结县| http://444 http://444 http://444